Descrizione dell'immobile
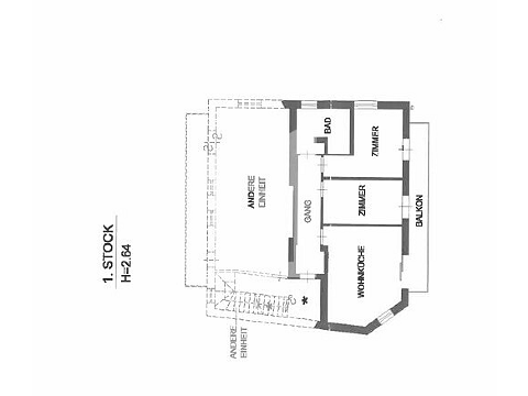
È in vendita un appartamento trilocale a Caldaro con circa 69 m² di superficie abitabile. Si trova al primo piano di un piccolo edificio con sole cinque unità abitative ed è stato completamente ristrutturato nel 2023.
Il riscaldamento è autonomo a gas, con pannelli radianti a parete. La cucina è di alta qualità ed è dotata di elettrodomestici Miele. Dal balcone si gode di una vista panoramica.
L’appartamento è libero e senza vincoli. Non sono presenti cantina né un posto auto assegnato; attualmente il parcheggio nel cortile è tollerato.
Informazioni sull'immobile
Superficie commerciale
87,00 m²
Superficie netta
69,00 m²
Piano
1
Bagni
1
Camere da letto
2
Anno di costruzione
2023
Condizioni dell'immobile
Nuovo
Controllo del riscaldamento
Autonomo
Balcone disponibile
Sì
Certificato energetico
Certificato energetico in preparazione
Ref. Id.
HA143
Posizione
Caricamento mappa...










