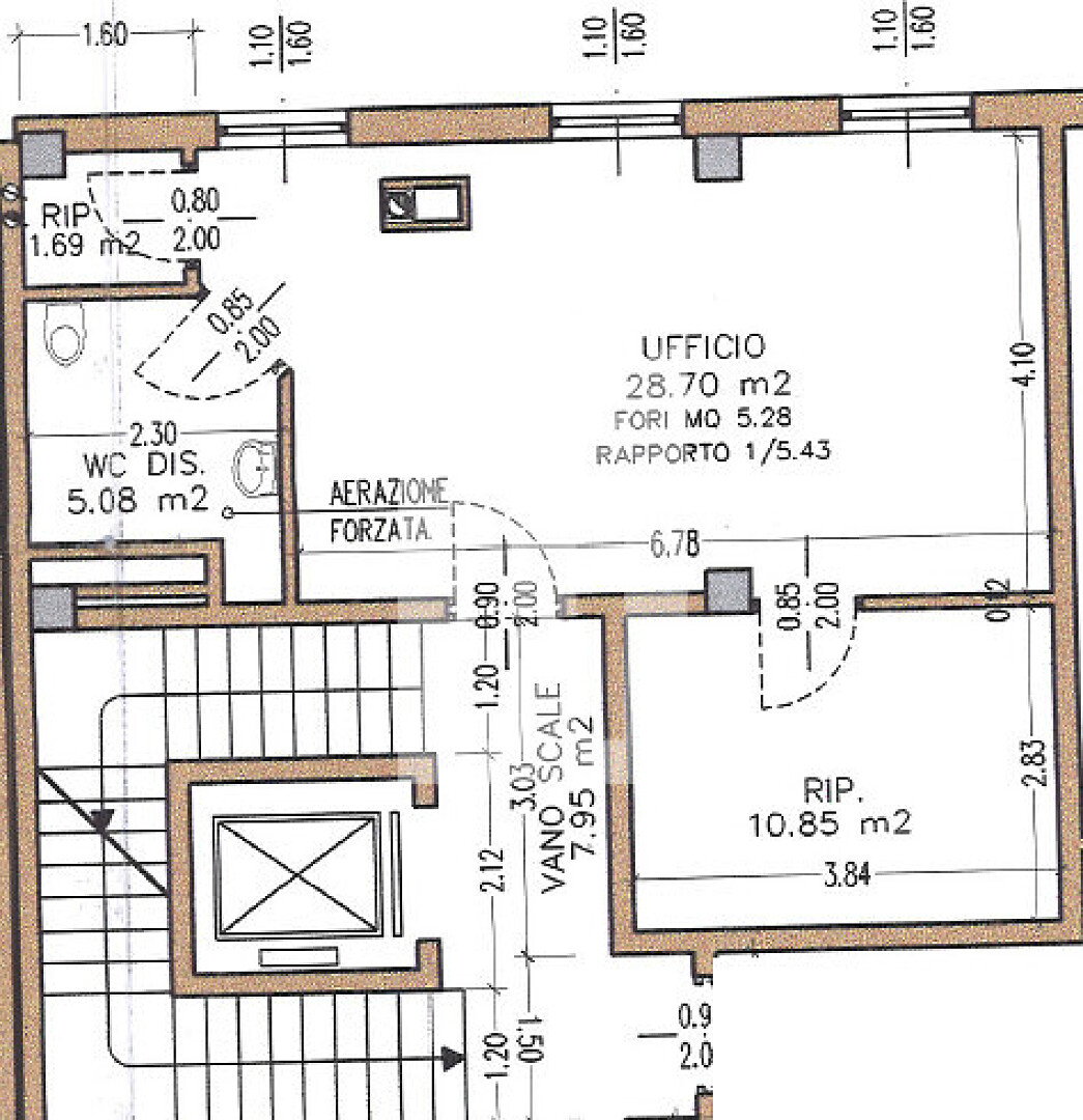
Zum Verkauf steht eine attraktive Büro- bzw. Studiofläche mit ca. 60 m² im 1. Obergeschoss eines gepflegten Firmengebäudes in sehr guter Lage.
Die Einheit eignet sich ideal als Büro, Studio, Agentur, Praxis oder Dienstleistungsfläche.
Ausstattung & Highlights:
• Ca. 60 m² Nutzfläche
• 1. Stock mit Fahrstuhl
• Eigener Parkplatz inklusive
• Heizung und Kühlung im Gebäude integriert
• Videoklingel
• Überwachungsanlage für zusätzliche Sicherheit
• Gepflegtes, professionelles Umfeld
• Interessante und gut erreichbare Position
Das Gebäude bietet eine moderne Infrastruktur und ist sowohl für Kunden als auch Mitarbeiter bequem zugänglich. Durch die technische Ausstattung und die flexible Nutzung eignet sich die Fläche für verschiedene gewerbliche Konzepte.
Fazit:
Eine funktionale und sichere Gewerbeimmobilie in guter Lage – ideal für Unternehmer, Selbstständige oder Investoren.
Zurück zur Übersicht






Kurtatsch a.d.Weinstr.,
Südtirol
Modernes Büro / Studio im Firmengebäude






1
58 m²
160.000 €
Objektbeschreibung
Objektinformationen
Handelsfläche
57,90 m²
Nettofläche
46,00 m²
Etage
1
Baujahr
2004
Zustand der Immobilie
Bewohnbar
Heizungssteuerung
Zentral
Heizsystem
Luftheizung
Aufzug vorhanden
Ja
Energiezertifikat
B
Ref. Id.
HGI 021-3
Lage
Karte wird geladen...
Unverbindlich Anfragen
Zurück

