Objektbeschreibung
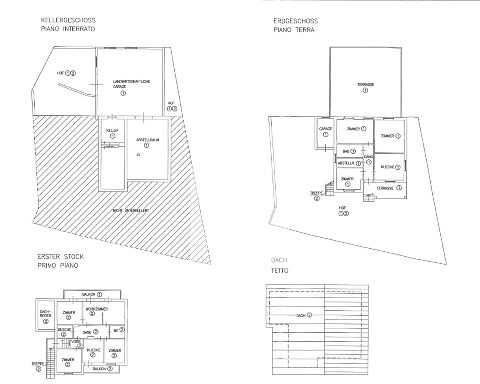
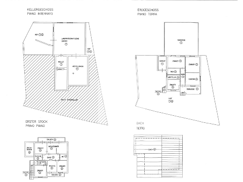
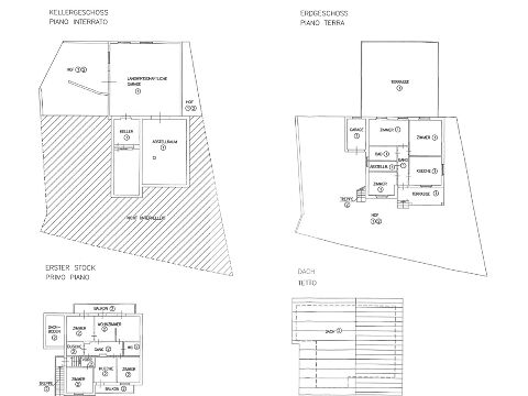
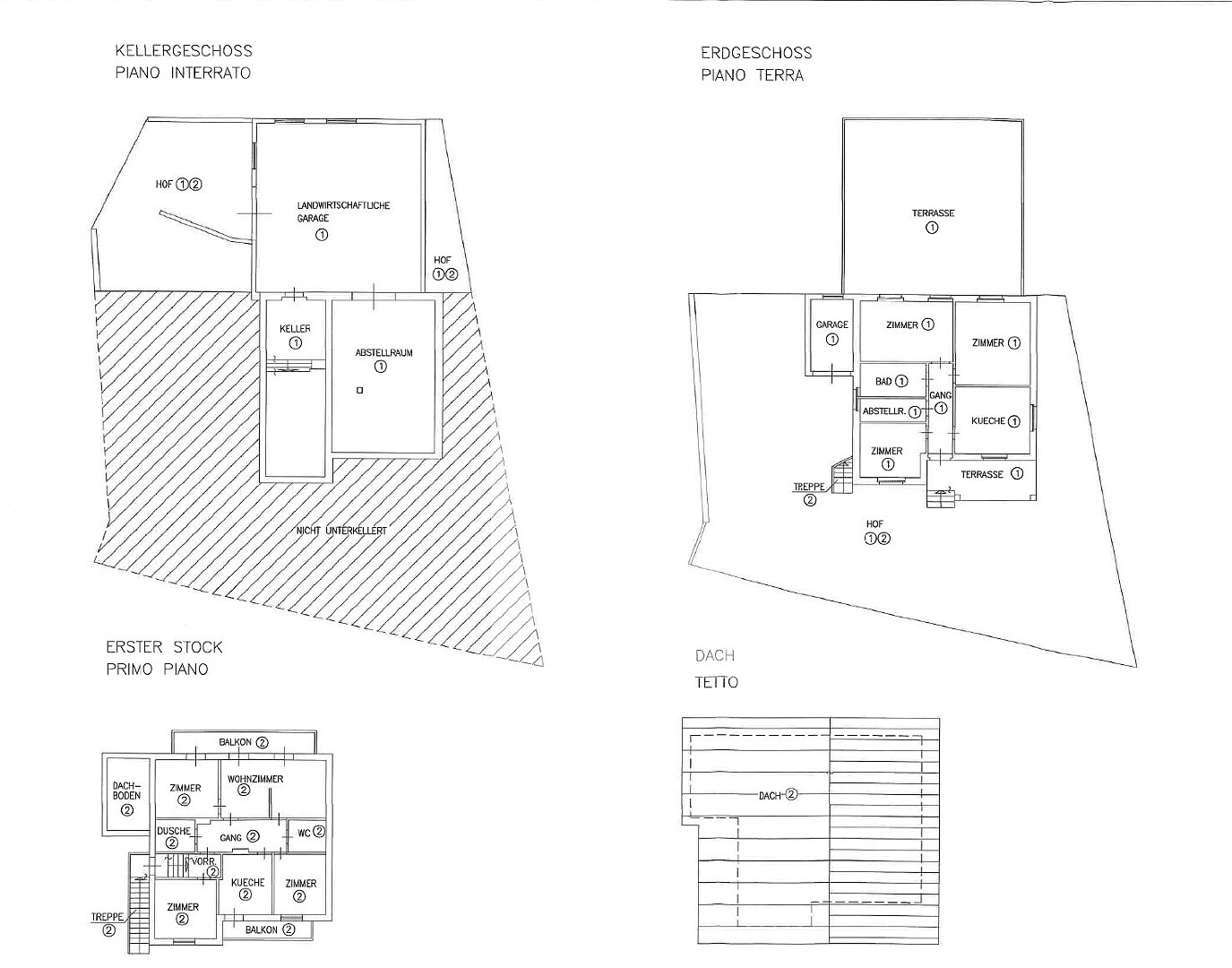
Wir verkaufen exklusiv einen geschlossenen Hof in der Gemeinde Kurtatsch mit zwei Wohnungen, Geräteraum, Keller und knapp 2 Hektar Obstbau.
Für weitere Fragen, freuen wir uns auf Ihren Anruf.
Objektinformationen
Handelsfläche
381,00 m²
Badezimmer
4
Schlafzimmer
4
Zustand der Immobilie
Bewohnbar
Heizungssteuerung
Zentral
Heizsystem
Heizkörper
Garage vorhanden
Ja
Keller vorhanden
Ja
Balkon vorhanden
Ja
Terrasse vorhanden
Ja
Garten vorhanden
Ja
Energiezertifikat
Energieausweis in Ausarbeitung
Ref. Id.
HVH 049
Lage
Karte wird geladen...












